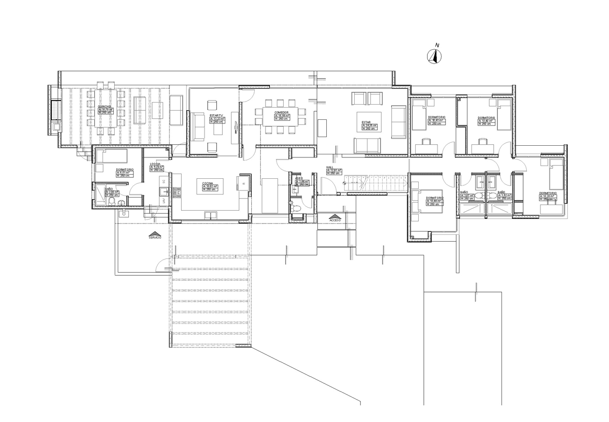
C1  1°Piso
C1 1°Piso
C1  2°Piso
C1 2°Piso

Vivienda Unifamiliar Aislada
Sitio C1 etapa F
Las Brisas de Chicureo
Colina - CHILE
Superficie construida : 282 m2
casa Las Brisas C1

Planos
[<<]